提醒你
本網站隱私權政策已於2018年7月20日更新,請至閱覽並同意新版隱私權政策,若您未勾選同意而繼續使用本網站,則視為您已同意新版隱私權政策。

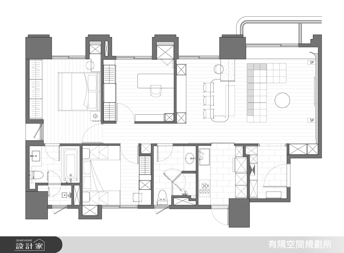
家,是承載未來二、三十年日常生活的重要舞台,因此規劃時應秉持長久主義,以喜愛的色彩風格為基調,結合貼合個人需求的機能設計,打造實用且賞心悅目的專屬宅邸。這座位於台中的45坪的新成屋,是一名單身男醫生的新居。整體格局與「有隅空間規劃所」於同建案的另一案例:「Patty House」呈鏡像,但風格卻截然不同。兩者唯一的共通點在於,皆完美結合了實用性與空間美學,充分展現有隅空間規劃所對於客製化設計的高度堅持與專業追求。
玄關廊道以灰色襯底,再以木作璧板佐線燈層疊,模擬窗戶被窗簾覆蓋時的模樣,兩側光線微微散射,又為入室空間增添一絲平和純粹。公領域設計延續玄關色調,純白與木質的交織,將北歐的清新與日式的和緩混合,呈現獨樹一幟的簡約模樣。客廳電視牆選擇以灰色樂土與石礫感磁磚堆疊,相近色建立一體感,大幅度留白搭配弧形收邊,模糊立面界線,無形之中延伸空間尺度。窗邊位置透過木質地坪架高,形塑如日式檐廊的設計,引導動線的同時,為休閒時光增添新選擇。客廳與餐廳之間,有一根大樑橫跨,設計師透過弧形修飾,弱化銳利稜角,天花的高低落差,還起到引導動線的效果。開放式餐廳選用石礫質感磁磚建構,巧妙呼應電視牆設計,精心挑選的FENIX面材搭配熱修復科技,延長使用年限,長久使用也沒問題。廚房則透過木格柵拉門分隔,增添畫面層次,又避免油煙侵擾。
主臥室圍繞著原建商所附的衣櫃規劃,將頭床頭設於臥室門邊,再透過格柵屏風遮擋視線建立緩衝,緩解緊張情緒與隱私。書房色調拉高樂土比例,營造出沉穩、更易於專注的辦公、閱讀氛圍,衣物收納規劃於書房入口的左側,佈滿整面牆體的收納,兼容吊掛、收納包款、飾品與香水的空間,完美應對男屋主大量收納所需。
室內設計可說是針對屋主的喜好與需求,量身打造專屬住宅的藝術與工藝。在這間45坪的單身宅中,屋主期待居住空間能散發溫煦與平和的氛圍,因此選擇以北歐風為設計主軸。而在同建案中,格局呈鏡像的另一間退休宅「Patty House」,則以優雅浪漫的美式風格為核心進行規劃。儘管兩戶的格局相似,最終呈現的成果卻各自展現了獨特的美感與個性。











看 有隅_02.Patty House 更多照片