提醒你

本網站隱私權政策已於2018年7月20日更新,請至閱覽並同意新版隱私權政策,若您未勾選同意而繼續使用本網站,則視為您已同意新版隱私權政策。

登入 / 註冊

會員登入

網友 / 設計師註冊

首頁 > 找文章 > 設計師撇步-私房秘技 > 四房的格局變身術

四房的格局變身術

文、整理_設計家
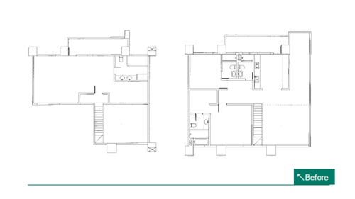
提問人:Amy Tseng 職業:家管 家庭成員:5大人 坪數:36.79坪 地點:台北市
 
平面圖診療專家 老胡
現任 裝潢便利通Easy deco資深設計師
強項空間 老屋、單層大坪數、樓中樓、預售屋
強項風格 美式新古典風格
 
屋主提問
您好:
家中成員有夫妻、一個男孩(小一)、公公(行動不便)及一名外佣,至少需要四個房間,未來佣人房希望能當書房使用,因為還需要擺設神桌,所以不知道室內配置如何安排較為理想,是否可以請您提供建議,附上室內及樓層平面配置圖。謝謝!
 
設計家,searchome,
Before
 
專家解析
現有的格局就是四房空間,主要的重點在於如何滿足全家人配置的需求及神桌擺放的位置。建議入門做玄關區,主要考量在於一進門就對出陽台,有穿堂煞的風水問題,且客廳太大形成空間的浪費,規劃玄關區,再以雙開門進入室內,先進入餐廳,以吧台與廚房連結做開放式的設計,餐廳連結客廳,佛桌區則規劃在客廳角落並以拉門與客廳區隔,獨立的佛桌區可以減少對室內風格的影響;餐廳與客用浴室間的小房間可做為書房,另一邊則為長親房,可擺上雙人床,方便外照顧老人家;主臥則延用原格局,先進更衣室再進主臥浴室;小孩房則規劃在主臥旁邊,這樣方便照顧。當然,也可以將小孩房跟長親房對調,書房則暫做為外佣房間,建議Amy與家人討論後再決定。
 
Loading