
设计师前言
这是一套有挑战性的户型改造设计,97㎡的不规则异形户型,95%是承重墙,客餐厅空间超小,房间不规则。如何在不动墙体的前提下,让它成为一家三口舒适住所,并满足长辈偶尔过来暂住的需求。
我们对空间进行整体布局大调整,通过一扇长1.9m*高2.4m大移门来回切换,拥有了两个舒适的卧房套间,让每个人都有专属的空间。原本的鸡肋储藏间,纳入主卧后,变成一个可变的多功能书房、客房、休闲吧台空间。
设计是重构生活的一种方式,多变的设计让家里能随时切换A面或B面,让一切变得有趣起来。
屋主一家自带中年人的沉稳气质,因此在本案设计里,我们在极简的设计中,加入了木色和复古元素。复古和极简互相交融,彼此接纳,从而构成了我们这套作品。
户 型 改 造 分 析

Before 平面图
原户型缺点:
①业主想要两个卫生间,但只有一个卫生间,而卫生间有两个洗漱台浪费空间。
②主卧空间异形不方正,主卧外的储藏间没有很好地利用。
③客餐厅非常局促,空间利用得不够。
④全屋储物空间不足
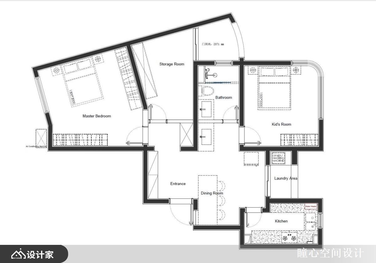
户 型 改 造 分 析

After 平面布置图
设计改造后亮点:
①原有的卫生间改成三分离卫生间,另外利用原有储藏间和小阳台,改造了一个新卫生间。
②主卧利用柜子把房间变方正,异形空间设计成小型衣帽间。主卧外的储藏间,可随时切换成书房、临时客房、休闲区。
③大门旁的转角凹位设计成餐厅卡座,通往两个卧室做了大移门,并安装投影幕布,一边吃饭一边观影。
④房间拥有大衣柜,并且主卧利用不规则的三角形空间做了衣帽间。
大门玄关定制了到顶储物柜,客卫开了门,通向小阳台的储物间。
⑤主卧房门←客厅长1.9m x 高2.4m大移门→儿童房房门,通过大移门实现客厅与两个卧室套房的链接,关上通往儿童房的移门,按下投影幕布,客厅有了观影娱乐的功能。一个移门开合之间切换不同的家庭使用场景。
客餐厅 Living Room
一踏入这个家,除了到顶的玄关鞋柜,还有这个抢眼的长1.9m*高2.4m大移门,以极简白为底色,间隔了木色门板装饰,与地面木色相呼应。

仔细一看,这个移门它可厉害了,通过移门的灵活开合,实现客厅与两个卧室套房的链接,平日里将移门打开,可实现空间的放大和通透。


关上通往儿童房的移门,按下嵌入在天花板上的投影幕布,这里秒变一个全家的观影娱乐客厅。
空间变得多变而有趣,不再是单一的功能。

巧妙利用凹进去的墙体空间,在这里放了舒适的沙发和餐桌椅,合二为一的家具设计,让这里兼具客餐厅功能。
胡桃色的餐桌椅不仅温馨,而且贴合屋主沉稳的年龄层。
这其中最抢眼就是旁边的厨房门,专门定制的上海老钢门,给这个空间增添了一抹复古元素。
主卧 Master Bedroom

拉开大移门的一侧是通往主卧的通道,沿路做了开放格收纳柜。

进入这里,你可以看见原本的储藏间改造成多功能房,再推门而入,即将进入的是主卧空间。

原本的主卧床头位置不规则,我们借助柜子当墙体,并与床、床头柜形成一个整体设计。
床和床头柜底下绕着一圈灯带,悬浮一般充满现代感。


水磨石木板定制的床头柜,特意设计成低矮的高度,除了当床头柜,还可以当做地台,坐在上面看书或喝茶亦是极好。

床头右侧设计了一个隐形门,随着移门的开启,里面竟然藏着一个暗室一般的衣帽间。



主卧外面原本是一个鸡肋的储藏间,利用率极低。我们在这里做了小型吧台、沙发床、电视、书桌。

它平时是屋主的休闲区,在这里可以偶尔加班工作,看看电视,喝喝小酒。父母过来时,沙发秒变床,这里又是一个卧室。


繁忙的都市中年人最爱夜深人静时,小酌一杯,放松一身疲惫。

休闲室尽头的门通往主卧卫生间,屋主两夫妻夜间如厕、洗漱都不用走得太远。

这里俨然成为一个功能齐全的小型主卫间,虽小但也超级实用!
儿童房 Children's Room

房子位于一楼,落地窗采光好,在此借势落地窗位置定制了书桌,镂空的书桌设计避免挡住窗户采光和屋外绿植景观。
特意选了绿椅和绿色软装,与窗外绿意,就这样在书桌区互相呼应!在这里设计书桌同时也因为光线充足对小孩的眼睛友好。
在这里看书做作业累了,一抬头就能看见窗外绿意盎然,缓解眼部疲劳。
书桌一侧的收纳柜我们做了玻璃柜门,里面摆放了上初中的屋主女儿最爱的手办,一开灯熠熠生辉。

到顶的双移门衣柜简洁而且实用,足够收纳小孩全部衣物。

儿童房的房门出来就是客卫,干湿分离的设计隔绝潮湿水汽,整个卫生间空间宽敞而舒适。
厨房 Kitchen


房屋位于一楼,原本不建议橱柜选用大面积深色,但女业主独爱沉稳的复古深色,没想到碰撞出不一样精彩厨房空间。这里就是女主人的私厨战场,U型橱柜设计,动线简短而实用。
家务间 Housekeeping Room

一侧的收纳柜嵌入了洗衣机、烘干机,即使梅雨天气也无惧,另一边预留洗手台面方便日常清洁或手洗衣物。
结束语
设计和人生很像,一个家代表你的生活态度,我们希望呈现给屋主是独一无二的。
希望这个极简与复古元素交融,再加上多变空间的设计,让这个三口之家在魔都一直温暖下去。