透天厝改造-室內設計文章報導推薦-設計家 Searchome

提醒你

本網站隱私權政策已於2018年7月20日更新,請至閱覽並同意新版隱私權政策,若您未勾選同意而繼續使用本網站,則視為您已同意新版隱私權政策。

登入 / 註冊

會員登入

網友 / 設計師註冊

首頁 > 文章搜尋結果 > 透天厝改造

【透天厝改造Before&After】五層樓給6個人住~空間過剩啦!何不保留一樓挑高,大器又寬闊!_視覺圖

【透天厝改造Before&After】五層樓給6個人住~空間過剩啦!何不保留一樓挑高,大器又寬闊!

這間地下一樓,地上四樓的透天住宅,是三代同堂,一家六口居住,同時也可作為招待所使用。希望公共空間能夠營造大器的質感,餐廳廚房設計開闊,且能隔絕油煙。一二樓之間的過渡空間,則希望設計為另一個起居空間。因家人均注重穿著,每間臥房都希望可已擁有充足的衣物收納。

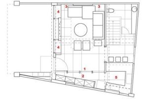
【透天厝改造Before&After】透天厝不平整空間整型記!怎樣把傾斜15度的空間變「正」?_視覺圖

【透天厝改造Before&After】透天厝不平整空間整型記!怎樣把傾斜15度的空間變「正」?

老屋翻修很容易遇到空間不平整的問題,豐聚室內設計利用不同設計手法拉正空間,並且有效利用,讓我們來看看設計師的如何把空間變「正」。

【透天厝改造 Before&After】買地自建有哪些「眉角」?三代同堂怎麼規劃哩?_視覺圖

【透天厝改造 Before&After】買地自建有哪些「眉角」?三代同堂怎麼規劃哩?

為了最愛的家人,買下一塊地,建構一幢獨棟別墅,是男主人的願望,在找建築師規劃興建的同時,也請設計師參與內部裝修及配置,但自地自建的房子不同於直接買屋,有很多條件的限制與需要注意的細節,都必須一一克服,才能完成心目中的家。

【透天厝改造 Before&After】前屋主裝修到一半,該怎麼接手後半部裝潢才不會勞民又傷財?_視覺圖

【透天厝改造 Before&After】前屋主裝修到一半,該怎麼接手後半部裝潢才不會勞民又傷財?

接手裝修到一半的透天住宅,必須將原裝潢拆除,管線重配,才能做出符合需求的設計。屋主想保留已鋪設的地坪,因此得找到原始供應商,才能讓空間有一致性,後續設計也得在材質、色彩上慎選,才能相互融合。

Loading