提醒你
本網站隱私權政策已於2018年7月20日更新,請至閱覽並同意新版隱私權政策,若您未勾選同意而繼續使用本網站,則視為您已同意新版隱私權政策。

「老屋比起新成屋有著購屋相對便宜、室內實際坪數大、屋主對於格局變動接受度高等優點,但因為需要面對屋況老舊、採光不佳等問題,在基礎工程與設計規劃上,需仰賴設計師豐富的知識與經驗」老屋創生達人成境設計李順程總監這麼說。此次他將以三個中古屋與老屋創生的案例,為我們解析改造時需要特別注意的重點。
>>中古屋創生要點:因應生活模式調整格局規劃
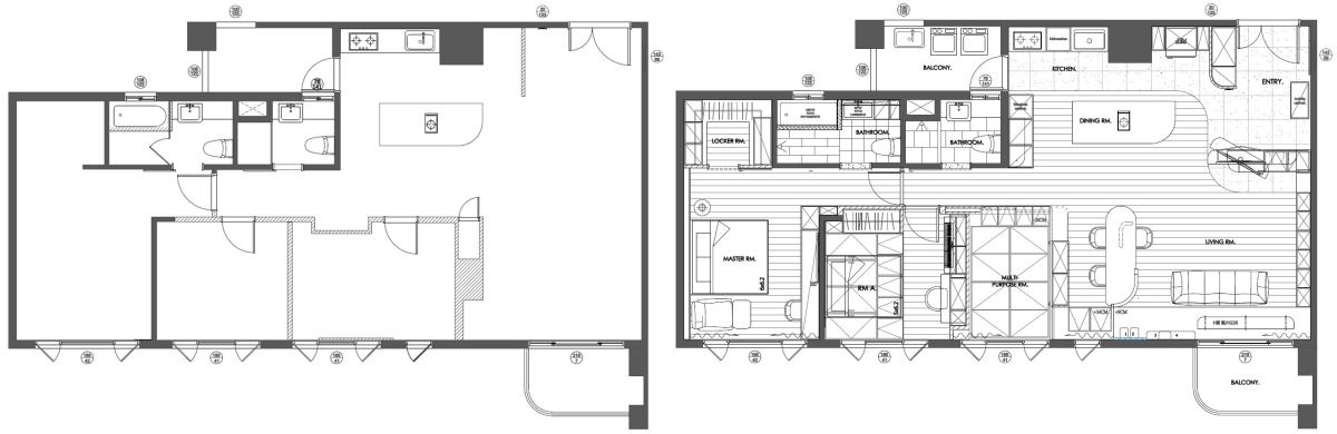
30 坪中古屋是一家三口的未來住居,屋主希望在此新空間能與家人擁有良好的互動,並同時有書房、客房及收納藏書的需求,更期盼愛貓能夠在家中自由自在的活動。

因應原屋格局不佳,加上光線難以進入顯得狹窄陰暗,成境設計重塑空間布局,從原始 3 房改為 2+1 房,多功能室利用彈性隔間令採光滿盈整個公領域,地板架高成為和室,牆面與地板置入收納,並與客廳連成具備多功能的長廊,滿足光線、客房、儲藏等多元需求。



此外,空間中的 3 個回字:旋轉式電視屏風、中島設計、窗台邊的書桌等也增加視覺穿透性與層次,讓一進門穿過玄關即能看到開闊又不失流暢動線的空間,而從電視側邊到書櫃、沙發後方到書房,透過貓跳台與廊道令貓咪能恣意行走,體現自然、自由的生活意象。
>>老屋屋創生要點:除了回應屋主需求外,還需有豐富的工程經驗
此間 43 坪的工業風居宅,三十幾年的屋齡有著常見的漏水、壁癌等問題,「這些都需要設計師有著紮實的工程經驗才能準確掌握,例如泥作施作時需試水,配管時也需要進行壓力測試,確保不會漏水等,這都是除了設計之外,更為基本卻重要的部分。」李順程總監說道,因此,他從基礎工程到設計謹慎細膩地規劃。

因為原始格局破碎與陰暗長廊讓人感受不到 43 坪的優勢,成境設計此次藉由重整格局來釋放空間,將原本 4 房改為 3 房,敞開一房納入公共空間作為多功能遊戲區,採光灑落全室,陰暗長廊也得以化解。



而因基地一面迎向湖景,主臥床鋪也轉向面對落地窗位置,無論是在公領域或是私密空間都能享受波光粼粼的曼妙景色。
>>老屋創生要點:設計依需求而生,並在過程解決屋況問題。
「成境的設計原則是裝潢後的家,一定要比原本的更寬敞、更好住」李順程總監提及,因此無論新成屋或是老屋,他的設計都是依照屋主需求而生,並於過程中用設計一一解決屋況問題,開創新的層次。


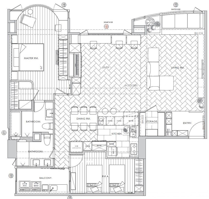
這間屋齡三十多的老屋有著大部分老屋常見的狀況:漏水、壁癌、天花大樑橫竄、屋高最低處僅有 215 公分等問題,在原始已經拆除為毛胚的情況下,設計師巧用大樑做為開闊公區的隱形界線,並盡量將天花裸露及利用遠中近景的描繪減少空間壓迫感,不僅解決原本的老屋難題,同時也營造出開闊舒適的生活印象。



而因為屋主是虔誠基督徒,因此在設計裡偷偷藏了 4 個十字架的巧思,分別位於玄關處、電視牆旁的層架、廚房櫃體的門把上和鋼琴房的推拉門上,以抽象細膩的方式象徵信仰環繞於生活之中。