提醒你
本網站隱私權政策已於2018年7月20日更新,請至閱覽並同意新版隱私權政策,若您未勾選同意而繼續使用本網站,則視為您已同意新版隱私權政策。

到底是價格親切的老屋吸引人,還是費用昂貴的新成屋令人嚮往呢?在室內設計的角度來看,新成屋的基礎工程花費較少,通常以原始條件變化,可透過預售屋客變,打造最適合的格局動線,省下拆除隔間的費用產生;而老屋考量使用年限,則會衍生水電管路、外牆防水與泥作等基礎工程費用,但相對來說,從零改造的老屋也帶來極高的可塑性。
本篇從兩間老屋、一間新成屋案例出發,邀請禾光室內設計團隊的鄭設計師,具體分享在不同狀況下,如何為屋主帶來客製化的美好生活!
面對僅有 23 坪的老屋,也能實現夢想裡的開放式餐廚,以及擁有更衣室、淋浴間的完整主臥嗎?禾光設計團隊重整格局,先將客廳、廚房合而為一,擴大原本狹小的廚房面積,營造寬敞通透的公領域視野。同時,選擇一道半高矮牆銜接場域,除了稍微遮擋廚房使用上的凌亂,後側的中島吧台銜接餐桌,增添彈性使用的備餐檯面,滿足女主人喜愛烹飪的需求。
至於主臥空間,在微調睡眠區的比例後,讓原本僅有半套的衛浴空間,額外增添淋浴設計,還加入擁有梳妝檯的更衣室,成功放大私領域的實用機能性。




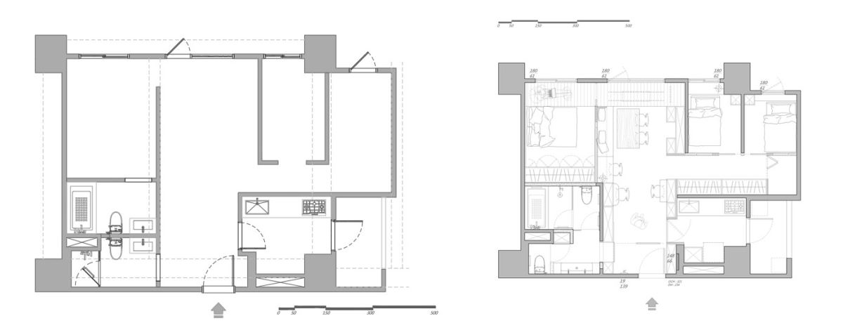
隨著兄妹倆漸漸長大,僅有 2 房的 20 年老屋需要經過翻新,才能提供一家四口舒適的生活空間。此案大幅調整公領域的配置,在拆除隔間後,將原本的客廳改為兩間小孩房,並搭配隱藏門設計,降低過多材質的交界,維持乾淨俐落的視覺。考量坪數僅有 18 坪,為了避免封閉狹隘的感覺,以半高電視牆銜接客、餐廳,維持視線、光影的流通感外;針對客廳的儲藏室門片,也選擇長虹玻璃材質,創造透光不透視的視覺效果。
此外,透過縮減主臥的比例,提升原有的衛浴空間,更拆成三大獨立空間——洗手台、淋浴與如廁區,讓三區能夠同步使用,讓一家四口的日常更為便利。




這間 20 坪新成屋,是有著日式無印風的四口親子宅。屋主一家十分愛好閱讀,藏書量相當大,於是在討論前期,便底定「取消沙發、電視牆」的制式作法。禾光設計團隊微調部分格局,將大人、小孩書桌,以及偌大書牆集中於公共領域,並搭配寬敞的開放式格局,創造全家互動交流的核心地帶,而主臥與兩間小孩房則以床面為主,賦予最純粹的睡眠品質。
最特別的是,客廳與主臥之間,在擁有美好綠意、採光的臨窗處,利用架高的木質臥榻牽起彼此,順勢帶入掀蓋式的收納設計。臥榻區的盡頭設置單槓,讓全家能在此運動、小憩。若兩處需要隱私時,也配有彈性的木質拉門,能夠保障分區的獨立性。





