提醒你
本網站隱私權政策已於2018年7月20日更新,請至閱覽並同意新版隱私權政策,若您未勾選同意而繼續使用本網站,則視為您已同意新版隱私權政策。

買房遇不到理想格局,拆除又怕增加成本嗎?或是沒有人贊助頭期,背負經濟的沈重負擔嗎?在這些考量下,部分民眾的眼光紛紛投向——預售屋,除了能分期繳納自備款,甚至能透過「客變服務」改變格局、既有建材與廚房/衛浴設備。
築青室內裝修的陳冠文設計師提醒,在進行客變前,要盡可能釐清個人需求、生活動線,透過設計師的專業判斷後,再依建設公司的規範,順著原有結構配置管線與格局,才能在安全無虞的狀況下,量身訂製貼近全家的理想樣貌。現在就讓我們從以下兩大案例一探究竟!
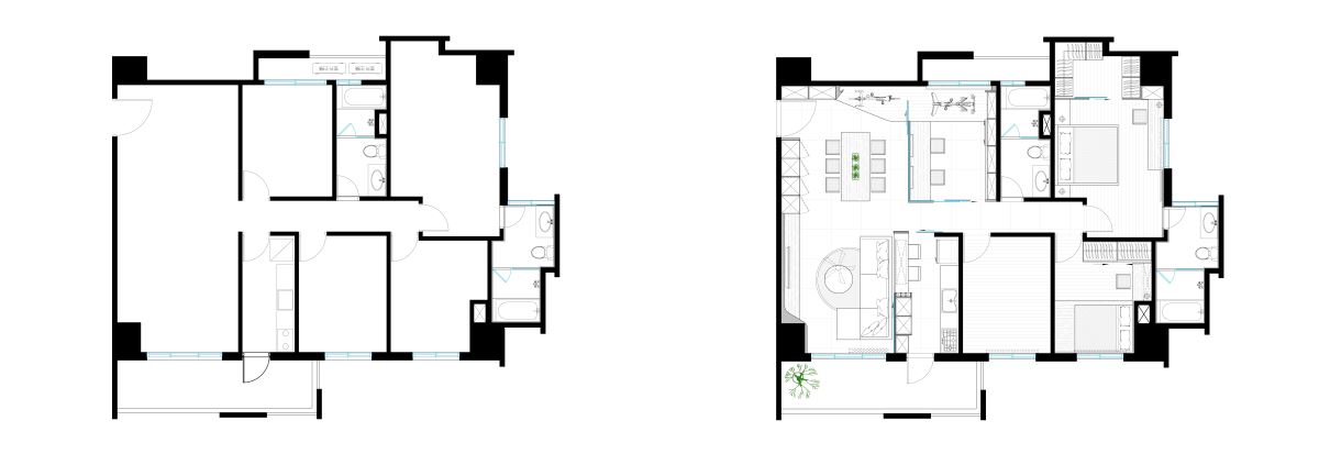
40 坪預售屋是一間甜蜜的新婚宅,熱愛鐵人三項的屋主,一開始就強調必須配置自行車的收納區,也期待擁有書房、開放式廚房。

陳設計師在客變時期,經過和屋主來回討論後,退掉和公領域緊鄰的兩道牆面。一方面是書房外觀上,能夠更換成通透的玻璃隔間,營造寬敞舒適的空間感,更將舞台般的架高地坪,一路從玄關延伸至書房,藉著移動式的滑門設計,讓屋主能將玄關牆面展示的單車,移到書房裡進行日常訓練。


另一方面,原本封閉的廚房場域,在外牆打開後,改為半高的吧台形式,揮別狹隘擁擠的感受,更替一字型廚房擴充電器櫃、收納櫃,提升整體的機能性外,也讓屋主夫妻擁有休憩片刻的吧台區。此案透過預售屋的客變服務,省下拆除隔間的成本,打造開放式格局,提升公領域的放大視覺,讓家人們能時刻關照彼此,共享生活裡的甜蜜時光。


這間 48 坪的預售屋,居住成員只有夫妻二人,所需房間數不多,最大的期待是回到家後,能有放鬆小酌、休憩片刻的空間樣貌。

陳設計師為了讓自然採光、遼闊窗景的優勢最大化,在客變時期,決定大膽減一房,取消既有的隔間設定,巧妙擴大公領域的範圍,將客廳、開放式書房的機能整合,不但提升兩人交流互動的頻率,無論身處何處,也都能享受日光的溫柔照拂,以及療癒的美好空景。


此外,退縮廚房的部分尺度,順勢配置長型的中島吧台,加入流理臺、紅酒櫃機能,為屋主夫妻打造私人的時尚小酒吧,平時在此一起小酌談心、休憩片刻,不但讓感情加溫,也能釋放工作壓力、沈澱日常情緒。


位於中央的房間,因應廚房的尺度調整,順勢縮小使用範圍,並定調為收納書籍、漫畫的藏書間,透過和租書店一致的雙層滑門櫃體,讓人能躲進故事的想像世界,忘卻生活裡的煩悶與憂愁。
